
Southern Pacific Caboose Project Information![]()
![]()
Copyright © 1997- 2024 Kohs & Company Inc, All Rights Reserve |
![]() |
photo courtesy of the Arnold Menke collection |
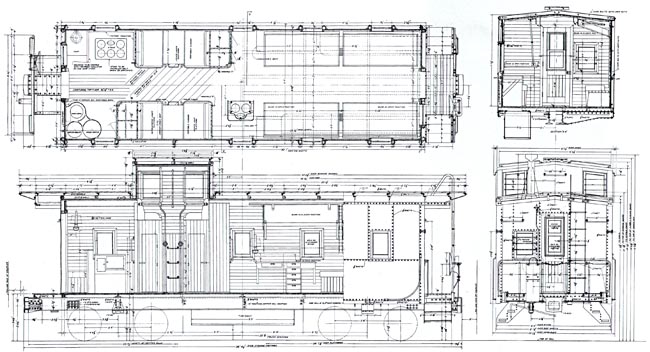
Shown above is caboose #205, a C-30-3 class wooden caboose which was built in 1930, this photo was taken in 1946. The plan and elevation view drawings for this class are shown immediately below. The construction of the C-30-3 class began in 1929 and continued for two years, resulting in the construction of more than 79 cabooses assigned to various sections of the road. Almost identical to the earlier sub-categories in the class, the dash 3's were unique in that they utilized a steel frame rather than the earlier wooden type. Despite their early construction, many remained in service into the 60's. There were numerous upgrades and paint scheme changes during their service life that can be modeled. |

Caboose number 1210 shown below is a C-40-3 class car, which was built in 1942, There were a total of 215 'cabs' built in this class. You will notice that the design of the C-40-3 is very similar in design to the wooden C-30-3 shown above, both on the exterior and with the interior arrangement. This photo was taken approximately one year after the original construction. Some cabooses in this class remained in service into the 80's following a number of alterations. There are several different paint and lettering schemes that can be modeled dependent on the time period desired. The elevation and plan drawings for the class are shown at the bottom of the page. |

